Vuokrataan toimistotilat, työtilat, muut tilat - Helsinki
Takkatie 7, Pitäjänmäki, 00370 Helsinki #10783936
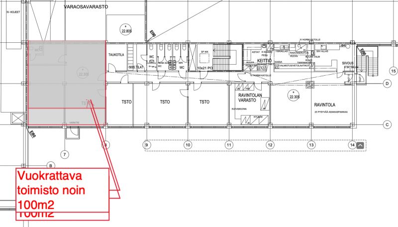
Hyväkuntoinen toimisto/työtila Piäjänmäen juna-aseman vieressä.
Osoite
Takkatie 7, 00370 Helsinki
Tilatyyppi
Toimistotilaa
100 m2
Työtilaa
100 m2
Muuta tilaa
100 m2
Yhteensä
100 m2
Kiinteistö
Toisen kerroksen avotila jossa on pieni keittiönurkkaus ja oma wc. Kulku tiloihin porrashuoneesta.
Sijainti
Kiinteistö sijaitsee Helsingin Pitäjänmäessä, aivan juna-aseman vieressä.
Pysäköinti
Kiinteistöllä on iso piha-alue jossa parkkipaikkoja.
Palvelut
Kiinteistössä toimii lounasravintola.
Vapautuu
Heti
Energiatehokkuusluokka
Ei lain edellyttämää energiatodistusta
Näkyvällä paikalla
Ota yhteyttä
Comreal Oy LKV
Joonas Nilsson
Näytä puhelinnumero
044 328 3425
Ota yhteyttä, niin kerron lisää kohteesta. Huomasithan, että kaikki kohteemme ei ole esillä internetissä. Kerro meille tilatarpeesi, niin autamme sinua etsimään yrityksellesi oikean tilan.
Tilahakumme on maksuton.
Pyydä lisätietoa
