Vuokrataan liiketilat - Kouvola
Laturinkatu 7, 45130 Kouvola #10713710
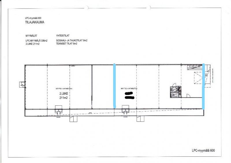
Vuokrataan Kouvolasta hyvältä paikalta liiketila 351 m2
Osoite
Laturinkatu 7, 45130 Kouvola
Tilatyyppi
Liiketilaa
351 m2
Kiinteistö
Avointa ja muuttovalmista myymälätilaa. Myymälän päädyssä nosto-ovi. Valaistuun mainospylvääseen mahdollisuus laittaa yrityksen mainostaulu. Pihalla runsaasti pysäköintitilaa.
Kysy lisää!
Kysy lisää!
Vapautuu
Heti
Energiatehokkuusluokka
Ei lain edellyttämää energiatodistusta
Katutasossa
Näkyvällä paikalla
Ota yhteyttä
Comreal Oy LKV
Anna-Maija Hyppönen
Näytä puhelinnumero
050 534 8001
P.
Näytä puhelinnumero
020 744 1000
Läkkisepänkuja 6, 00620 Helsinki
Comreal Oy on kasvava ja osaava kiinteistöalan palveluntuottaja kiinteistöjen omistajille ja käyttäjille.
Kiinteistö on sijoittajalle hyvä sijoitus vain, jos siellä on tyytyväiset asiakkaat, eli vuokralaiset. Siksi laadukas asiakaspalvelu on toiminnan lähtökohta.
Pyydä lisätietoa
