Vuokrataan toimistotilat, muut tilat - Helsinki
Salmisaarenaukio 1, Salmisaari, 00180 Helsinki #10678420
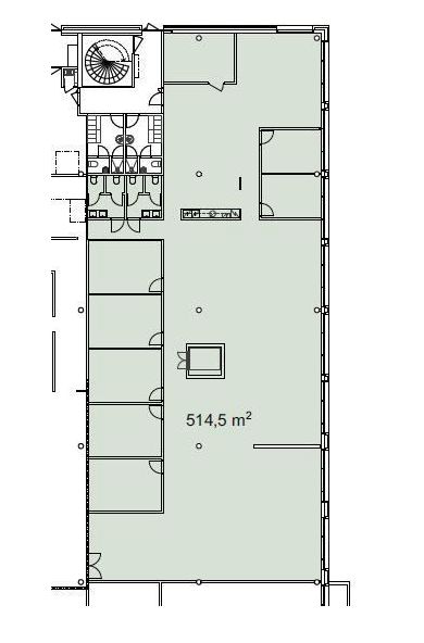
Laboratorioksi soveltuva tila Salmisaaressa.
Osoite
Salmisaarenaukio 1, 00180 Helsinki
Tilatyyppi
Toimistotilaa
514 m2
Muuta tilaa
514 m2
Yhteensä
514 m2
Tila soveltuu
Puhdastila
Kiinteistö
Kiinteistön ensimmäisessä kerroksessa oleva tila jossa nykyjaolla on 8 toimistohuonetta ja loppu avotilaa. Tilaan on tavarahissi yhteys suoraan kiinteistön lastauslaiturilta.
Toimistossa on on suuri huonekorkeus, huippulaadukkaat pintamateriaalit ja korkeatasoinen talotekniikka.
Upeat näköalat suurista ikkunoista.
Toimistossa on on suuri huonekorkeus, huippulaadukkaat pintamateriaalit ja korkeatasoinen talotekniikka.
Upeat näköalat suurista ikkunoista.
Sijainti
Kiinteistö sijaitsee Salmisaaren paraatipaikalla yrityselämän keskittymässä.
Pysäköinti
Lämmin pysäköintihalli sekä pyöräparkki.
Palvelut
Kaikki kattavat business parkin palvelut kuten aulapalvelu, lounasravintola Factory, vuokrattavat neuvottelu- ja kokoustilat sekä sosiaali- ja suihkutilat työmatkapyöräilijöille.
Kiinteistön vieressä myös Salmissaaren liikuntakeskus kaikkineen palveluineen.
Ruoholahdessa on myös useita ruokakauppoja, lääkäriasemia, kahviloita ja ravintoloita.
Kiinteistön vieressä myös Salmissaaren liikuntakeskus kaikkineen palveluineen.
Ruoholahdessa on myös useita ruokakauppoja, lääkäriasemia, kahviloita ja ravintoloita.
Kulkuyhteydet
Bussipysäkki 10 m
Raitiovaunupysäkki 500 m
Metroasema 1 km
Raitiovaunupysäkki 500 m
Metroasema 1 km
Vapautuu
Heti
Rakennusvuosi
2007
Kerros
1 / 6
Energiatehokkuusluokka
Ei lain edellyttämää energiatodistusta
Hissi
Ota yhteyttä
Comreal Oy LKV
Joonas Nilsson
Näytä puhelinnumero
044 328 3425
P.
Näytä puhelinnumero
020 744 1000
Läkkisepänkuja 6, 00620 Helsinki
Comreal Oy on kasvava ja osaava kiinteistöalan palveluntuottaja kiinteistöjen omistajille ja käyttäjille.
Kiinteistö on sijoittajalle hyvä sijoitus vain, jos siellä on tyytyväiset asiakkaat, eli vuokralaiset. Siksi laadukas asiakaspalvelu on toiminnan lähtökohta.
Pyydä lisätietoa
