Vuokrataan toimistotilat - Helsinki
Vattuniemenranta 2, Lauttasaari, Lauttasaari, 00210 Helsinki #10618289
Osoite
Vattuniemenranta 2, Lauttasaari, 00210 Helsinki
Tilatyyppi
Toimistotilaa
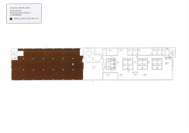
513 m2
Kiinteistö
Vuokrataan Lauttasaaresta merellisestä ympäristöstä kiinteistön 3. kerroksen toimistotila 513 m². Tila koostuu pääosin valoisasta avotilasta. Valmiina myös muutamia toimistohuoneita sekä neuvottelutilat. Kiinteistöllä lounasravintola.
Kiinteistössä vuokrattavia varastotiloja.
Kiinteistössä vuokrattavia varastotiloja.
Pysäköinti
Vuokrattavia autopaikkoja pihalla.
Kulkuyhteydet
Metroasema 920 m
Bussipysäkki 220 m
Juna-asema 4,7 km
Lentoasema 29,1 km
Bussipysäkki 220 m
Juna-asema 4,7 km
Lentoasema 29,1 km
Vapautuu
Heti
Energiatehokkuusluokka
Ei lain edellyttämää energiatodistusta
Ota yhteyttä
Comreal Oy LKV
Tuula Leikas
Näytä puhelinnumero
040 531 3722
P.
Näytä puhelinnumero
020 744 1000
Läkkisepänkuja 6, 00620 Helsinki
Comreal Oy on kasvava ja osaava kiinteistöalan palveluntuottaja kiinteistöjen omistajille ja käyttäjille.
Kiinteistö on sijoittajalle hyvä sijoitus vain, jos siellä on tyytyväiset asiakkaat, eli vuokralaiset. Siksi laadukas asiakaspalvelu on toiminnan lähtökohta.
Pyydä lisätietoa
