Vuokrataan toimistotilat - Helsinki

Malminkartanonkuja 4, Konala, 00390 Helsinki #10599458

Pääkonttorintasoista toimistotilaa Länsi-Helsingistä. Tilakoot 611m2 ja 851m2.

Osoite
Malminkartanonkuja 4, 00390 Helsinki
Tilatyyppi
Toimistotilaa
611 - 851 m2
Kiinteistö
Toimistotiloissa on palkkijäähdytys sekä asennuslattia, jotka takaavat tilojen teknisen toimivuuden sekä vapaan muunneltavuuden. Vuokratilat jaettavissa tarpeen mukaan.

Kiinteistössä on vielä vapaana seuraavat tilat;

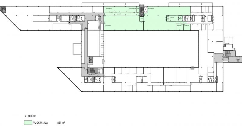
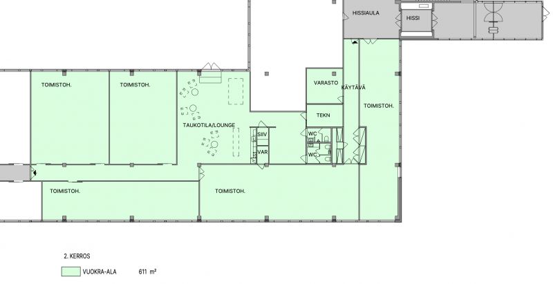
2 krs
611 ㎡
- toimisto on jaettu 4 isompaan toimistohuone kokonaisuuteen
- oma taukotila/lounge
- keittiö
- 2 kpl vessoja

Modernia toimistoa kiinteistön toisessa kerroksessa. Toimitila on entinen showroom-toimistotila, käynti tilasta suoraan rakennuksen kattopihalle. Toimistossa on asennuslattia, joka mahdollistaa tilojen muunneltavuuden joustavasti asiakkaan tarpeiden mukaan. Toimitilat teknisesti erinomaisessa kunnossa.

851 ㎡
- avotoimistoa
- 4 kpl kokoushuoneita
- 2 kpl puhelinkoppeja
- wc-tilat
- keittiö

Tilasta on mahdollisuus rakentaa käynti toimistotalon kattotasanteelle. Toimistossa on
asennuslattia, joka mahdollistaa tilojen muunneltavuuden joustavasti asiakkaan tarpeiden mukaan. Toimitilat teknisesti erinomaisessa kunnossa.
Sijainti
Kiinteistö sijaitsee Vihdintien välittömässä läheisyydessä, Kehä I:ltä sekä Kehä III:lta helposti saavutettavissa.
Pysäköinti
Lämpimässä parkkihallissa on myös erillinen pyöräparkki polkupyöräilijöille sekä parkkihallissa on 14 sähkönlatauspistettä.
Palvelut
Kiinteistössä on erittäin kattavat business parkeille tunnusomaiset palvelut, kuten lounasravintola, 24/7 valvonta, lämmin parkkihalli sekä kuntosali ja – palloiluhalli.

Kiinteistön vuokralaiset voivat vuokrata edulliseen tuntihintaan ajanmukaisia neuvottelutiloja sekä noin 50 paikkaisen erillisen auditorion käyttöönsä. Neuvottelutiloja on useita ja ne sopivat 6-18 hengen kokouksiin. Yhdessä neuvotteluhuoneessa on myös videoneuvottelumahdollisuus.
Kulkuyhteydet
Konalaan on hyvät bussiyhteydet. Malminkartanon juna-asema sijaitsee noin 1,3 kilometrin päässä.
Muuta
Varastorakennuksen puolelta on tarvittaessa mahdollisuus vuokrata varastotiloja. Toimistorakennuksesta on kulku sisäkautta varastorakennuksen puolelle.
Vapautuu
Heti
Energiatehokkuusluokka
Ei lain edellyttämää energiatodistusta
Ota yhteyttä

Comreal Oy LKV

Salla Saraniemi
Näytä puhelinnumero 040 138 1081

Läkkisepänkuja 6, 00620 Helsinki

Comreal on valtakunnallinen, asiantunteva ja aktiivinen kiinteistöalan kumppani, joka palvelee sekä kiinteistönomistajia että toimitilojen käyttäjiä. Toimintamme ydin on yksinkertainen: tarjota erinomaista palvelua kaikille.

  http://www.comreal.fi
Pyydä lisätietoa

Kohteesta Malminkartanonkuja 4, Helsinki