Vuokrataan toimistotilat - Espoo
Linnoitustie 6, Leppävaara, 02600 Espoo #10845445
Tilavaa ja joustavaa toimistotilaa Leppävaaran Säterinportissa
Osoite
Linnoitustie 6, 02600 Espoo
Tilatyyppi
Toimistotilaa
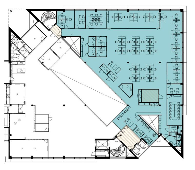
604 m2
Tilajako
Jaettavissa
Kiinteistö
Tässä A-talon 5. kerroksen 604 m² toimistotilassa yhdistyvät tehokkuus ja viihtyisyys. Tilaan mahtuu jopa 60 työpistettä, ja se on mahdollista jakaa kahdelle käyttäjälle (342 m² ja 262 m²). Toimisto remontoidaan täysin vuokralaisen tarpeiden mukaan, joten voit suunnitella siitä juuri yrityksellesi sopivan.
Säterinportin tilat ovat erittäin muunneltavia ja mahdollistavat sekä avarat monitilatoimistot että kompaktit, tilatehokkaat ratkaisut. Tarjolla on myös valmiita tiloja tutkimus- ja testaustarkoituksiin.
Säterinportti muodostuu neljästä rakennuksesta, joissa on yhteensä yli 34 000 m² vuokrattavaa tilaa. Sijainti on erinomainen Turunväylän ja Kehä I:n läheisyydessä, hyvien julkisten kulkuyhteyksien varrella. Työntekijöiden hyvinvointi on huomioitu kattavilla palveluilla – käytössä on monipuoliset liikuntatilat, rennot yhteistilat, hierontapalvelut, parturi-kampaamo ja jopa lasten leikkipaikka. Verkostoituminen onnistuu vaikkapa pelikonsolien äärellä!
Säterinportin tilat ovat erittäin muunneltavia ja mahdollistavat sekä avarat monitilatoimistot että kompaktit, tilatehokkaat ratkaisut. Tarjolla on myös valmiita tiloja tutkimus- ja testaustarkoituksiin.
Säterinportti muodostuu neljästä rakennuksesta, joissa on yhteensä yli 34 000 m² vuokrattavaa tilaa. Sijainti on erinomainen Turunväylän ja Kehä I:n läheisyydessä, hyvien julkisten kulkuyhteyksien varrella. Työntekijöiden hyvinvointi on huomioitu kattavilla palveluilla – käytössä on monipuoliset liikuntatilat, rennot yhteistilat, hierontapalvelut, parturi-kampaamo ja jopa lasten leikkipaikka. Verkostoituminen onnistuu vaikkapa pelikonsolien äärellä!
Vapautuu
Heti
Energiatehokkuusluokka
Ei lain edellyttämää energiatodistusta
Jaettavissa
Ota yhteyttä
Comreal Oy LKV
Ville Laitinen
Näytä puhelinnumero
+358 40 663 8767
Läkkisepänkuja 6, 00620 Helsinki
Comreal on valtakunnallinen, asiantunteva ja aktiivinen kiinteistöalan kumppani, joka palvelee sekä kiinteistönomistajia että toimitilojen käyttäjiä. Toimintamme ydin on yksinkertainen: tarjota erinomaista palvelua kaikille.
Pyydä lisätietoa
Asiakaspalvelu
info@comreal.fi
* Soitettaessa kiinteän puhelinverkon liitymästä 8,28 snt/puhelu + 7,00 snt/min - soitettaessa matkaviestinverkon liitymästä 8,28 snt/puhelu + 17 snt/min
Comreal Oy
Läkkisepänkuja 6
00620 Helsinki
