














Vuokrataan liiketilat - Helsinki
Bulevardi 15, Punavuori, 00120 Helsinki #10794012
Vuokrataan valoisa kahden kerroksen liiketila Helsingin Design Districtiltä.
Osoite
Bulevardi 15, 00120 Helsinki
Tilatyyppi
Liiketilaa
51,5 m2
Kiinteistö
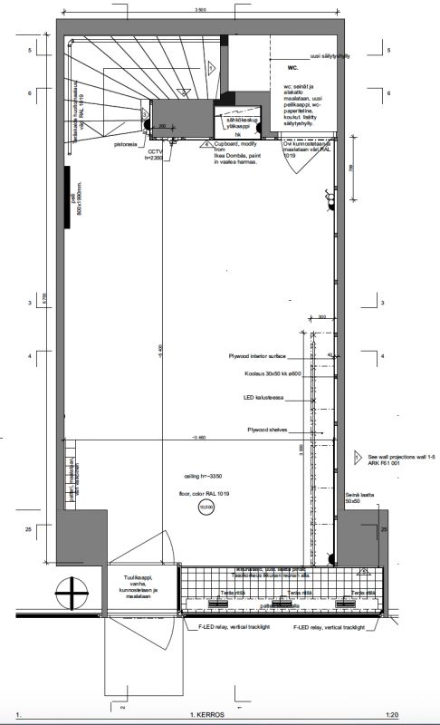
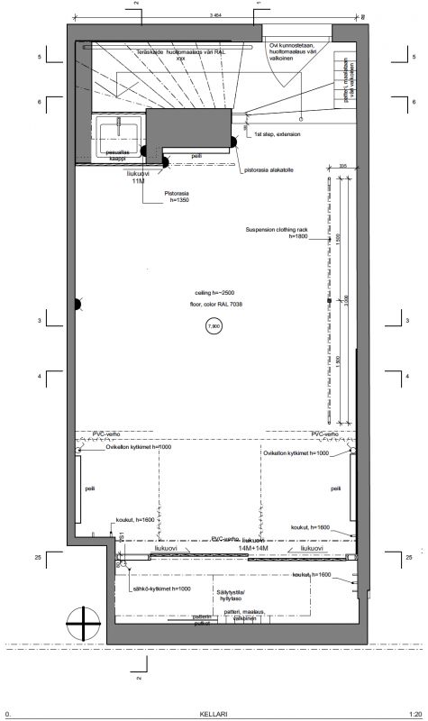
Vuokrattavana kahdessa tasossa oleva liiketila erinomaisella sijainnilla Bulevardilla. Kerros ala noin 25,75 m2. Tila tarjoaa kompaktin mutta toimivan kokonaisuuden monenlaiseen liiketoimintaan.
Katutasossa on suuri näyteikkuna suoraan Bulevardille, joka tuo hyvin näkyvyyttä ja luonnonvaloa tilaan. Sisäänkäynnin yhteydessä on tuulikaappi, ja liiketilan perällä pieni wc.
Alakertaan johtavat portaat vievät avotilaan, jossa on lisäksi pieni keittiönurkkaus sekä verhoilla erotettu varastotila. Kellarista on myös käynti kiinteistön sisäpihalle, jossa sijaitsee roskakatos.
Tila sopii hyvin kahvilatoimintaan, erikoisliikkeelle tai elintarvikealan toimijalle.
Tilassa ei ole ravintolatoimintaan vaadittavaa rasvakanavaa tai rasvakaivoa.
Katutasossa on suuri näyteikkuna suoraan Bulevardille, joka tuo hyvin näkyvyyttä ja luonnonvaloa tilaan. Sisäänkäynnin yhteydessä on tuulikaappi, ja liiketilan perällä pieni wc.
Alakertaan johtavat portaat vievät avotilaan, jossa on lisäksi pieni keittiönurkkaus sekä verhoilla erotettu varastotila. Kellarista on myös käynti kiinteistön sisäpihalle, jossa sijaitsee roskakatos.
Tila sopii hyvin kahvilatoimintaan, erikoisliikkeelle tai elintarvikealan toimijalle.
Tilassa ei ole ravintolatoimintaan vaadittavaa rasvakanavaa tai rasvakaivoa.
Sijainti
Idyllinen sijainti Bulevardin varrella Aleksanterinteatterin läheisyydessä. Kampin kauppakeskus sekä Helsingin päärautatieasema ovat kävelymatkan päässä, ja raitiovaunuilla 3 ja 6 sekä busseilla 14 ja 18 pääsee aivan kiinteistön läheisyyteen.
Pysäköinti
Kiinteistön edessä on kiekollista pysäköintitilaa sekä lähettyvillä myös keskustan parkkihallit.
Palvelut
Alueella toimii monet ravintolat, baarit, hotellit, erikoistavaroiden myymälät sekä kauneudenhoito-alan toimijat.
Kulkuyhteydet
Metroasema 900 m
Raitiovaunupysäkki 50 m
Bussipysäkki 50 m
Juna-asema 1 km
Lentoasema 20 km
Raitiovaunupysäkki 50 m
Bussipysäkki 50 m
Juna-asema 1 km
Lentoasema 20 km
Muuta
Tila vapautuu 1.1.2026.
Vapautuu
01.01.2026
Energiatehokkuusluokka
Ei lain edellyttämää energiatodistusta
Katutasossa
Näkyvällä paikalla
Ota yhteyttä
Comreal Oy LKV
Joonas Nilsson
Näytä puhelinnumero
044 328 3425
Ota yhteyttä, niin kerron lisää kohteesta. Huomasithan, että kaikki kohteemme ei ole esillä internetissä. Kerro meille tilatarpeesi, niin autamme sinua etsimään yrityksellesi oikean tilan.
Tilahakumme on maksuton.
Pyydä lisätietoa