 
 
 
 
 
 
For rent warehouse - Espoo
Hyttimestarinkuja 4, Kauklahti, Kauklahti, 02780 Espoo #10833428
Lämmintä ja kuivaa varastotilaa Kauklahden teollisuusalueella.
Address
	Hyttimestarinkuja 4, Kauklahti, 02780 Espoo
Type
	Warehouse
	535 m2
Property
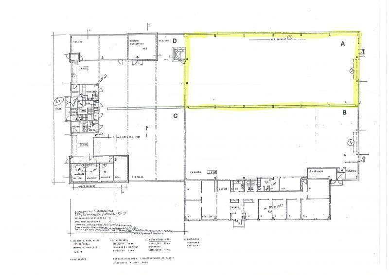
	Vuokrataan Kauklahden teollisuusalueelta lämmin katutason varastotila 535 m². Tilaan johtaa sähkökäyttöinen nosto-ovi (kork. 4,28 m ja lev. 4 m). Tilaan myös käyntiovi. 
Hallin ylin korkeus 5,88 m ja alin korkeus 5,36 m.
Hallin pituus 35,9 m ja leveys n. 14,9 m.
Tilassa yläikkunat ja varastohyllyjä hallin seinillä. Keskiosan saa tarvittaessa varastohyllyillä tai ilman hyllyjä.
Tilassa wc, erillinen vesipiste sekä toimistokoppi.
Hallissa ei ole lattiakaivoa.
Autopaikkoja kiinteistön edessä ja takapihalla.
Vuokrakauden alkuun 3 kuukautta 50 %:a alennettua vuokraa.
Hallin ylin korkeus 5,88 m ja alin korkeus 5,36 m.
Hallin pituus 35,9 m ja leveys n. 14,9 m.
Tilassa yläikkunat ja varastohyllyjä hallin seinillä. Keskiosan saa tarvittaessa varastohyllyillä tai ilman hyllyjä.
Tilassa wc, erillinen vesipiste sekä toimistokoppi.
Hallissa ei ole lattiakaivoa.
Autopaikkoja kiinteistön edessä ja takapihalla.
Vuokrakauden alkuun 3 kuukautta 50 %:a alennettua vuokraa.
Parking
	Pysäköinti ja ulkopihan käyttö hallin leveydeltä = n.15 metriä.
Release date
	Heti
Energy efficiency class
Ei lain edellyttämää energiatodistusta
Street level
CONTACT
	Comreal Oy LKV
Tuula Leikas
  
     
    Show phone number
  
  040 531 3722
P.
  
     
    Show phone number
  
  020 744 1000
Läkkisepänkuja 6, 00620 Helsinki
Comreal Oy on kasvava ja osaava kiinteistöalan palveluntuottaja kiinteistöjen omistajille ja käyttäjille.
Kiinteistö on sijoittajalle hyvä sijoitus vain, jos siellä on tyytyväiset asiakkaat, eli vuokralaiset. Siksi laadukas asiakaspalvelu on toiminnan lähtökohta.
More info
   
			
							
				 
					